Mapa   Ficha
Para reformar
Ático único con terraza y gran potencial en Goya
Madrid (Barrio de Salamanca) - REF. 1080

112 m2

15 m2

3

2

6
venta: 1.450.000 €
Descripción

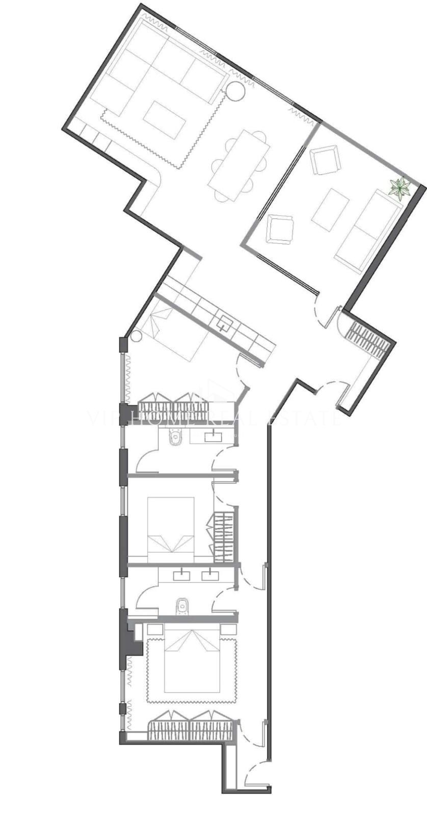
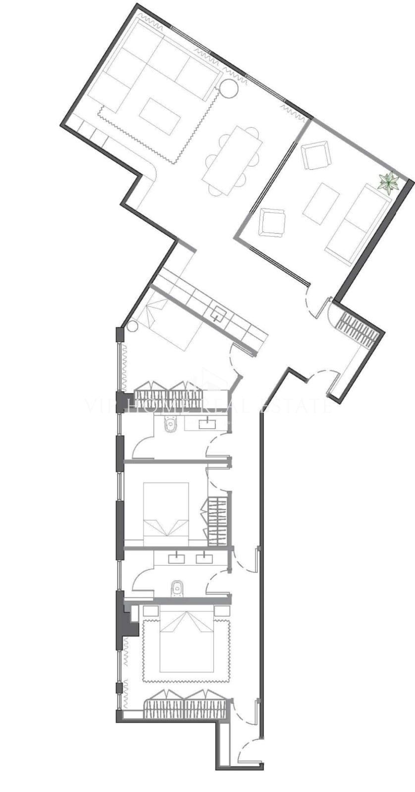
En el corazón del prestigioso barrio de Goya, dentro del elegante distrito de Salamanca, se encuentra este ático único, ideal para quienes buscan un proyecto de reforma con carácter y estilo. Situado en la sexta planta de una finca clásica con dos ascensores y servicio de portería, este inmueble combina ubicación privilegiada, amplitud y un enorme potencial para crear una vivienda de ensueño.


La propiedad cuenta con 112 m² interiores y una terraza privada de 15 m², perfecta para disfrutar de la vida al aire libre en el centro de Madrid. Lo que realmente hace especial a este ático son sus techos a dos aguas con vigas de madera vistas que alcanzan una altura máxima de 4,30 m, aportando amplitud, encanto y la posibilidad de crear espacios arquitectónicamente espectaculares.


La distribución actual incluye tres dormitorios, dos baños, salón comedor y cocina americana. Su estructura permite múltiples configuraciones, incluyendo la posibilidad de dos dormitorios en suite y un aseo adicional, con cocina abierta con isla. Gracias a su orientación y grandes ventanales, la vivienda recibe abundante luz natural durante todo el día, creando una atmósfera cálida y luminosa.


La terraza, de aproximadamente 15 m², es un espacio altamente aprovechable que se integra de manera natural con la zona social, ideal para cenas con amigos, desayunos al sol o simplemente disfrutar de un oasis privado en pleno centro de la ciudad.


La ubicación es otro de sus puntos fuertes: a solo 2 minutos andando de El Corte Inglés de Goya y rodeado de restaurantes, tiendas de lujo, gimnasios, mercados tradicionales y excelentes conexiones de transporte público. Vivir aquí significa tener todo lo necesario a la puerta de casa y, al mismo tiempo, disfrutar de la tranquilidad de una finca residencial de categoría.


Este ático es perfecto tanto para quienes buscan una vivienda principal con personalidad, como para inversores que deseen revalorizar un activo en una de las zonas más demandadas de Madrid. Con una buena reforma, este inmueble puede transformarse en una propiedad de alto standing, con gran atractivo para el mercado nacional e internacional.


Una oportunidad única para crear un hogar a medida en una ubicación inmejorable.

Características
Precio Venta 1.450.000 €
Año de construcción 1930
Construidos 112 m2
Precio/m² 12.946
Dormitorios 3
Baños 2
Terraza
Altura/Planta 6
Estado Requiere reforma integral
Ascensor
Calificación Energética En trámite
Ubicación
La dirección del inmueble es aproximada.
Escalas de eficiencia



Tu agente
Jorge Rodríguez
Contáctanos

Si deseas más información sobre esta propiedad, por favor, rellena el formulario.

 Sí, he leído y/o acepto las Condiciones de uso y la Política de privacidad
Galería