Appartamento con terrazza da ristrutturare
Madrid (CHAMBERI) - REF. 1106

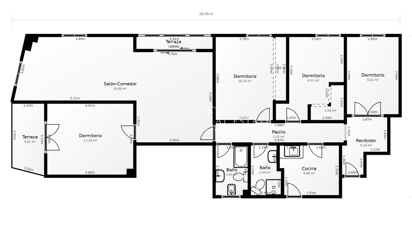
136 m2

4

2

4
vendita: 1.050.000 €
Descrizione

In una strada tranquilla di Arapiles, nel cuore di Chamberí, proponiamo questo appartamento esterno con terrazza, ideale per chi desidera ristrutturare e creare una casa su misura. L’immobile dispone di 4 camere da letto e 2 bagni, una base perfetta per ripensare la distribuzione, aggiornare impianti e finiture e integrare soluzioni moderne come cucina open space, armadi a muro e maggiore comfort energetico. Essendo esterno, gode di ottima luminosità e piacevoli viste aperte, un plus raro in zone centrali. Lo stabile è dotato di ascensore e servizio di portineria, per una quotidianità più comoda e sicura. La posizione è strategica: vicinanza a LIDL, Alcampo, DIA e Supercor, al Mercado de Vallehermoso, a negozi e ristoranti, alla Plaza del Conde del Valle de Suchil, alla Casa de México en España e all’ospedale universitario. Nelle immediate vicinanze si trovano anche Universidad Antonio de Nebrija, UNIE, campus UAX e Universidad Pontificia Comillas. Ottimi collegamenti con la metro San Bernardo (linee 2 e 4) e gli autobus 21, C03, 16 e 61. Acquistare da ristrutturare consente di personalizzare ogni dettaglio e valorizzare l’investimento in uno dei quartieri più richiesti di Madrid. Perfetto per famiglie, professionisti e investitori che cercano qualità di vita e rivalutazione.

Caratteristiche
Prezzo di vendita 1.050.000 €
Anno di costruzione 1959
Costruito 136 m2
Prezzo/m² 7.721
Camere da letto 4
Bagni 2
Riscaldamento
Terrazza
Altezza/Piano 4
Condizioni
Tipo di pavimento
Ascensore
Certificazione energetica (E) VISTA
Elettricità
Gas
Acqua
Portiere

Tour virtuale

Scale di efficienza


Efficienza delle emissioni 39,00
Efficienza di consumo 187,30
187,3
39

Il tuo agente
Jorge Rodríguez
Contattaci

Se desideri maggiori informazioni su questa proprietà, si prega di compilare il modulo:

 Sì, ho letto e/o accetto i Termini di utilizzo e le Norme sulla privacy
Proprietà simili:
 
920.000 €
Cod. 1060  139 m2  2  3

✨ Recentemente ristrutturato, arredato e pronto per essere abitato nel cuore di Malasaña ✨ Presentiamo questo luminoso appartamento esterno con tre finestre che si affacciano sulla strada, situato in una strada tranquilla, una posizione privilegiata nell'ambito quartiere Malasaña-Universidad, a Madrid.